LUTMASTRAAT 175 _ AMSTERDAM ZUID
De voormalige gymzaal aan de Lutmastraat 175 in stadsdeel Zuid is door de Gemeente Amsterdam uitgegeven. De in 2014 uitgeschreven twee fasen tender is gewonnen door de combinatie architectenbureau Atelier PUUUR met Vink Bouw Nieuwkoop en DID Vastgoedontwikkeling.
Op de plek van de oude gymzaal – halfhoog ten opzichte van de belendingen- wordt een geheel nieuw gebouw gerealiseerd die tussen de twee belendende panden het bouwblok op de bestaande bouwhoogte zal aansluiten.
De inpassing tussen de bestaande scheve panden, de beperkte kavelgrootte gecombineerd met het veelzijdige programma zorgden voor een complexe bouwopgave.
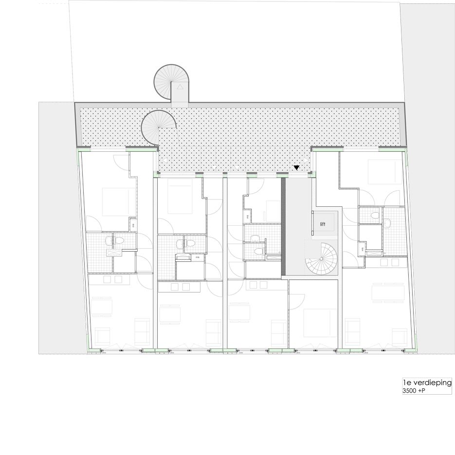
Het project bestaat uit 15 kleine 2-/ en 3-kamer starters woningen variërend van 37 tot 47m2 gbo in de middensegment huur.
Op de beganegrond is een bedrijfsruimte gereserveerd voor maatschappelijke functie van 180m2.
Onder het pand is een driekwart verdiepte parkeerkelder gesitueerd met ruimte voor 11 auto’s. Vanwege de beperkte ruimte en belendingen is gekozen voor een afzinkkelder zodat voldoende ruimte ontstaat om parkeerplekken te kunnen realiseren.
Een korte steekgalerij ontsluit aan de binnenzijde van het bouwblok de woningen.
Aan de zijde van het binnenhof is een iets verhoogde daktuin ontstaan voor gemeenschappelijk gebruik.
Het dak is volledig gevuld met zonnepanelen voor de opwekking van duurzame energie.
De geluidbelaste voorgevel van de bovenbouw bestaat uit grote metselwerk kaders uit een bijzondere baksteen, de beganegrond gevel is opgetrokken in natuursteen. De gemeleerde wasserstrich baksteen is verwerkt in een halfsteens blokverband, die in de penanten liggend en in de borstweringen staand is verwerkt. De kleur van het metselwerk onderscheid zich subtiel van de omgevende gevelkleuren. De massiviteit en de reliëf in het metselwerk refereert eigentijds naar de Amsterdamse school die zo kenmerkend is voor de buurt.
Het raster van grote vierkanten met grote verdiepte ramen is geïnspireerd op de gevel van de voormalige gymzaal.
woningbouw, 2014-2018
grootte: 1.375m2 BVO, 15 2-kamer studio’s, vrije sector huur
plaats: Amsterdam Zuid
opdrachtgever: DiD Vastgoedontwikkeling, Vink Bouw





















