Wooncomplex _ Amsterdam Zuidoost
80-120 sociale huurwoningen en BOG ruimten
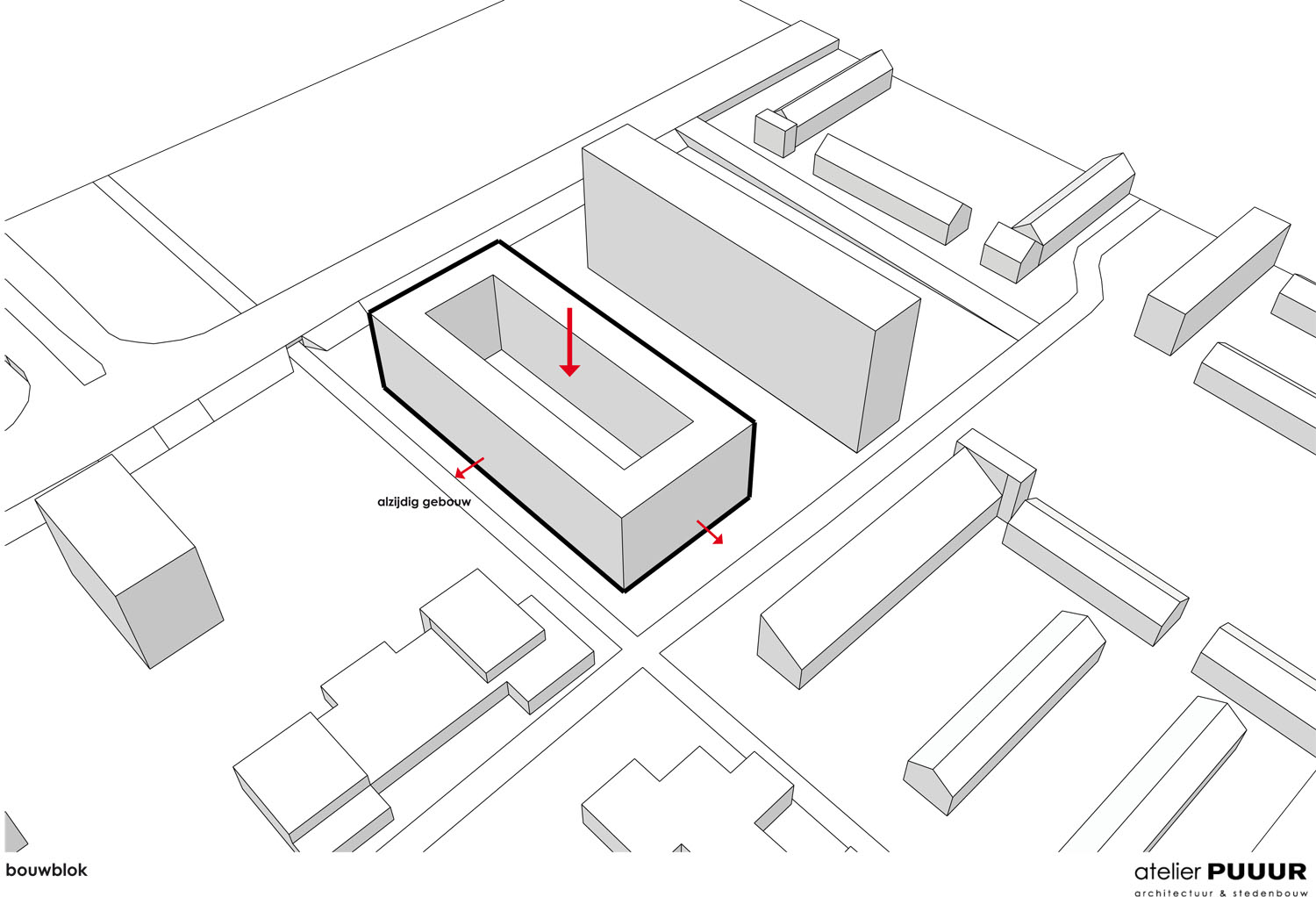
Woningcorporatie Rochdale schreef een besloten meervoudige opdracht uit voor een nieuwbouw complex voor in Amsterdam Zuidoost. De locatie is gelegen op een onbebouwd stuk grasveld naast het Echtenstein flatgebouw. De nieuwbouw wordt gerealiseerd aan de Daalwijkdreef, westelijk van de flat Echtenstein en noordelijk van Egoli, een complex laagbouwwoningen van Rochdale. De Daalwijkdreef is verhoogd, de kavel ligt circa 3 meter lager. Het programma bedraagt 80 sociale huurwoningen , studio’s 2K-/3K-/4K appartementen. Tevens ongeveer 600m2 aan B.O.G. ruimte in de plint.
De onderste laag dient te bestaan uit gemengde voorzieningen, zoals bijvoorbeeld kantoren, kleinschalige bedrijven, dienstverlening en maatschappelijke voorzieningen.Te denken valt hierbij aan zorgfuncties op wijkniveau en een openbare bibliotheek. De doelgroep bestaat uit een deel van de huidige bewoners van Geldershoofd en Gravestein. Dit zijn overwegend kwetsbare bewoners die laag op de sociaal economische ladder staan. In de opbouw van de woning zoneringen is rekening gehouden de positionering binnen het opengewerkte bouwblok.
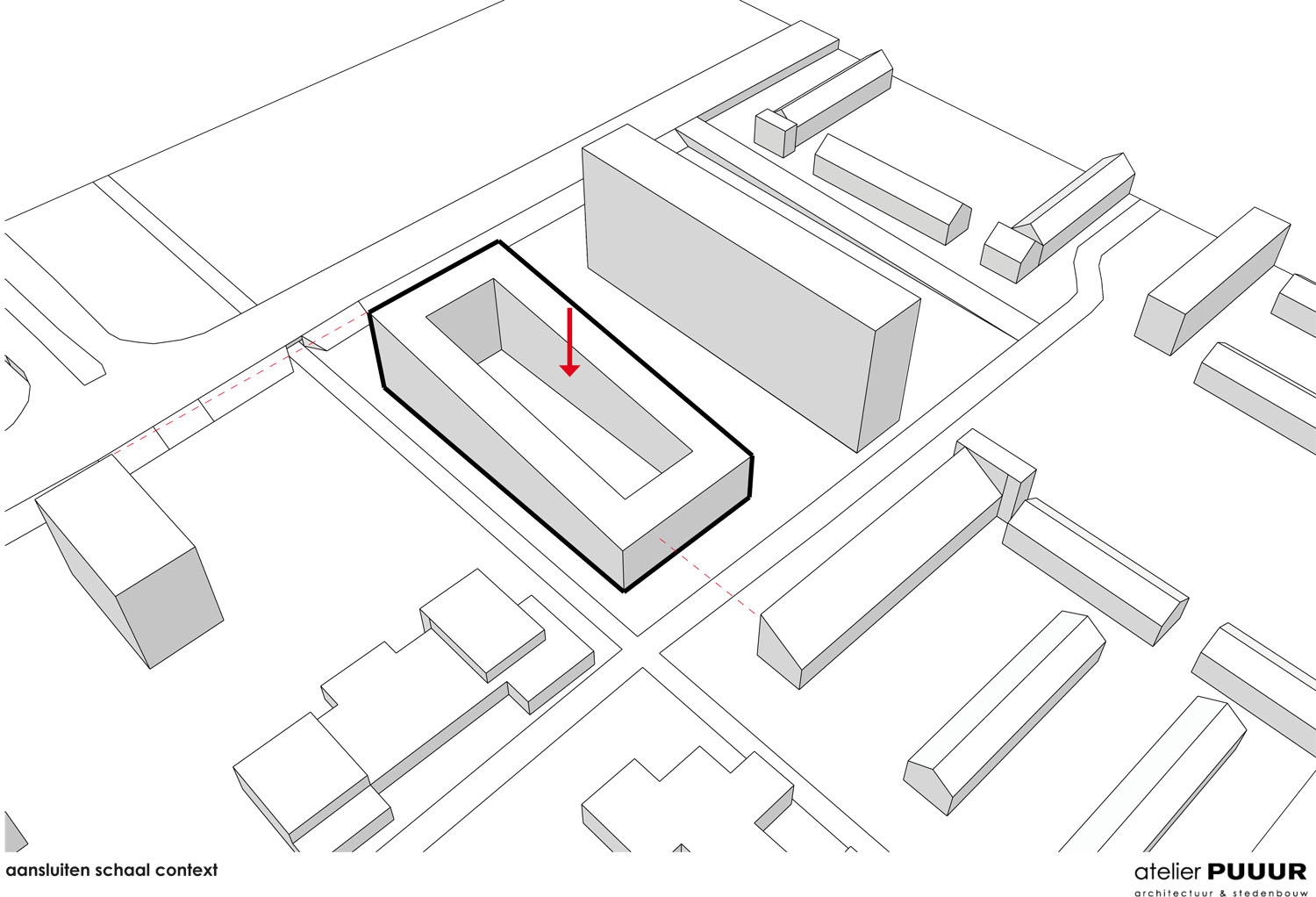
Het ontwerpvoorstel gaat uit van een alzijdig gebouw met voordeuren en bewoonde ramen aan de straat en rondom een hoogwaardige aansluiting naar de openbare ruimten. De verschillende type woningen worden verdeeld over meerdere deelgebieden van een bouwcomplex. Door deze zonering ontstaat ruimte om verschillende woonsferen te maken met ieder hun eigen ontsluitingstypologie. Een hybride complex met zowel wonen aan een hof, galerij woningen en grondgebonden woningen lopen in elkaar over een ruimtelijke geheel. De zo ontstane overmaat zorgt voor plekken waar woonkwaliteit toegevoegd kan worden in de vorm van ongedwongen ontmoeten en of gemeenschappelijke daktuinen en privé buitenruimten. Een aantal strategisch geplaatste gevelopeningen zorgen voor spannende doorkijken naar de omgeving vanuit de binnenwerelden. Het naar de zon trapsgewijs aflopende bouwblok bied veel zonlicht diep in het complex toe. Tevens vormt deze dalende lijn een graduele overgang van de hoogbouw aan de dreefzijde naar de lage gezinswoningen met kap aan de andere zijde.
Opdrachtgever: woningstichting Rochdale Amsterdam
woningen: 80-120 studio’s , app. , grondgebonden won. 1K, 2K, 3K, 4K sociale huurwoningen
gemeenschappelijke ruimten: binnentuin, inpandig fietsparkeren
gebouwgrootte: ± 16.300m2 BVO
schetsontwerp jan 2019














