patio3 particulier opdrachtgeverschap nieuw leyden – voormalig slachthuisterrein leiden
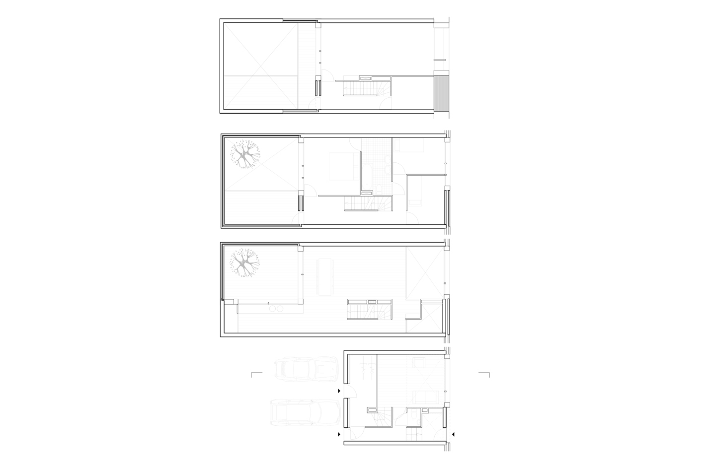
Aan de rand van het centrum van Leiden, op het voormalige EWR / Slachthuisterrein worden 350 kavels in particulier opdrachtgeverschap gebouwd.
De gegeven randvoorwaarden voor het programma en de specifieke voorwaarden van de parkeersituatie zijn gebruikt om kwaliteit aan de woning te geven. Het stedenbouwkundig plan streeft naar een autoluwe, openbare, groene woonomgeving. In dit voorstel sluiten woningen naadloos aan op het collectieve domein.
bouwkavel, particulier opdrachtgeverschap BOUWMIJ! 2004
grootte: gebruiksoppervlak 170m2
plaats: Nieuw Leyden, voormalig slachthuisterrein Leiden
opdrachtgever: Gemeente Leiden en Woningbouwcorporatie Portaal




