TURKISH CULTURAL CENTER AND MOSQUE [TCC] _ MERKEZ CAMII DOETINCHEM
The municipality of Doetinchem wanted a contemporary mosque design and not a ‘homesick mosque’, and issued a multiple commission. The municipality issued a multiple assignment, which included guidelines such as: accessible, transparent plinth, contemporary appearance, parking removed from the streetscape, minaret as an abstract work of art.
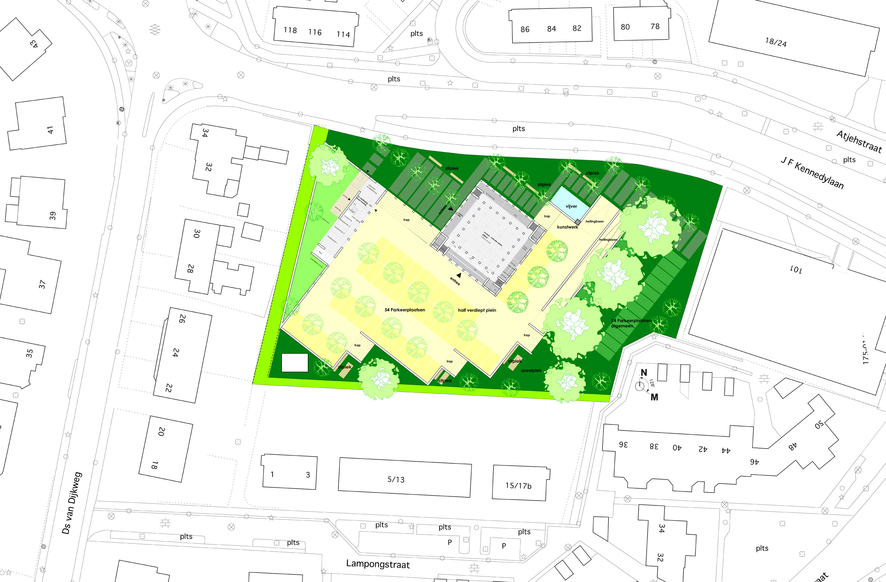
The I.S.N. [Islamic Foundation of the Netherlands] Merkez Mosque, is situated in the middle of a residential area on a major road and has a broad program including socio-cultural spaces, a conference room, library, youth rooms, food store, kitchen and a prayer room on the two upper floors. The accompanying imam’s house will be realized in a later phase. [This ‘presbytery’ forms a front to both the street and the sunken square and connects with its backyard to the backyard of the neighbors].
The compact building volume creates space to embed the building in a green collar of trees, which at the same time forms a natural buffer to the adjacent houses. The building is also a reference to the KaƤba.
The half-sunken square is used to remove the parking facility from the street scene and to create an enclosed outdoor space. Besides parking, it will also be used regularly for outdoor events such as fairs and openhouse days.
The building, measuring some 2,000m2, stands on a site of 2.7Ha and will eventually have a low dome with a free-standing minaret, which has only symbolic significance. The building and the grounds are turned a quarter turn with respect to the urban structure, oriented and organized in the direction of Mecca, so that the area also acquires a unique character of its own.
The main entrance at street level connects to the low-threshold, social/ cultural program. The second entrance is located at the semi-underground square with parking spaces. Because of this all-sided orientation, the building has no rear sides. The almost entirely glass plinth floor gives the building an open and inviting character to the public and surrounding.
The outdoor spaces around the building form a chain of places of atmosphere, which gradually merge into the inner spaces of the building. Inside, this gradual transition continues from spaces with a public character to more quiet functions, up to the most intimate space in the building, the prayer room.
Internally, the floor plan of the building is divided into three rings; the outer ring forms the supporting functions, the inner ring the core functions which are separated by a traffic zone. The low dome does not dominate the main volume and is only just visible from a distance from the two street intersections, internally positioned in a way to also include the women’s section.
The interior is finished by the community association itself, due to the strong contrast of the formal exterior and informal interior, the building is also called the ‘jewel box’.
The masonry facades are hand-built in a special block bond, referring to Islamic pattern art and are interspersed with vertical precast concrete columns on which the masonry is carried. These concrete columns in the facades not only function as a kind of screen in the exterior because of the perspective effect, but also refer to ancient use of columns, the resulting vertical articulation in the facades refers to the heavenly direction.
At the main entrances, the five free-standing columns refer to the five pillars of Islam. For the appearance of the building a balance between the Islamic idiom and the Dutch context has been researched, whereby the most important elements: identity and recognition can be experienced from different user perspectives.
construction, 2011 – 2013
size: 2.000m2
location: Doetinchem
client: municipality of Doetinchem, HDV Turkish community association
Address: JF Kennedylaan














