Sociale huur woningbouw ‘APPLAUS’ _ KOP GRASWEG, AMSTERDAM NOORD
In het transformatiegebied bedrijventerrein Buiksloterham in Amsterdam Noord ontwikkelt Kop Grasweg C.V. (Amvest en Hurks) in samenwerking met woningcorporatie de Alliantie op de kop van de Grasweg een plan met sociale woningbouw, luxe appartementen (koop en huur) en commerciële functies, in totaal zo’n 350 woningen. De locatie ligt tussen het Tolhuiskanaal en het IJ. Deze locatie wordt ontwikkeld tot een duurzame wijk voor wonen en werken. Deze nieuwe wijk is onderdeel van het stedenbouwkundig plan Cityplots BSH ism met Delva landscape en StudioNinedots.
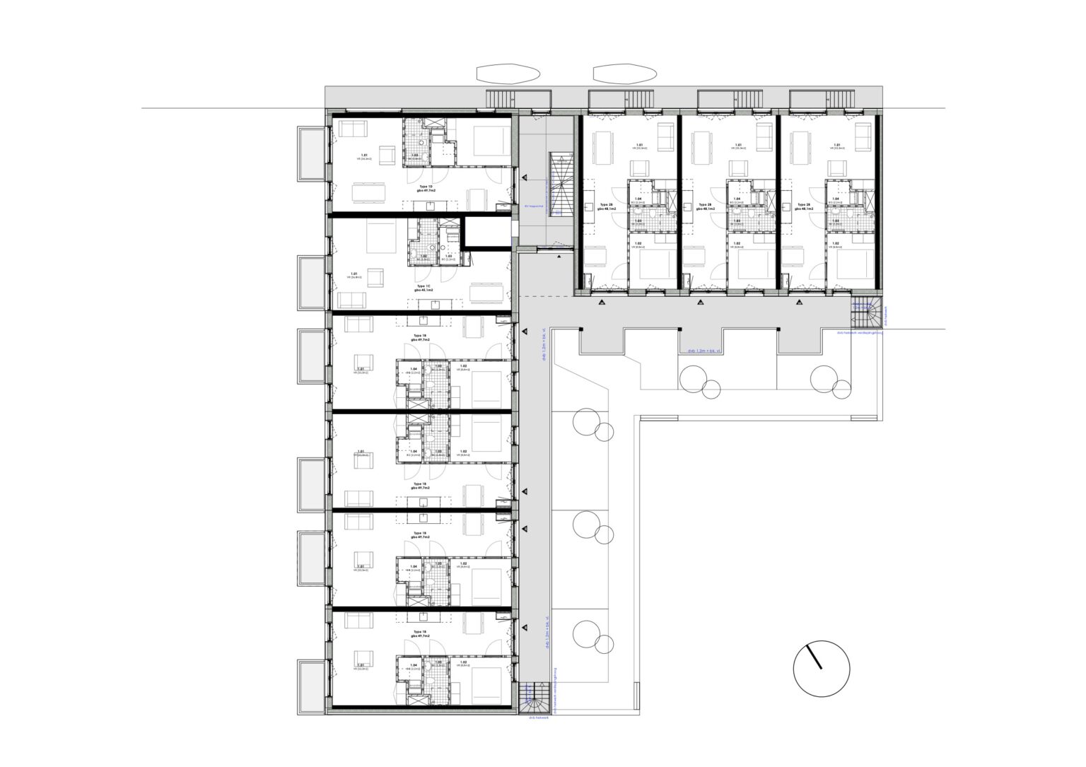
De Alliantie ontwikkeld hier drie sociale huur blokken rondom een binnenplein met zo’n 140 woningen. Atelier PUUUR heeft binnen dit plan het ontwerp verzorgt voor een woonblok met 46 2-kamer appartementen voor starters, direct gelegen aan het Tolhuiskanaal.
Het haakvormige bouwvolume staat met zijn noordgevel in het kanaal waar een steiger is voorzien voor gemeenschappelijk gebruik en ligt aan de voet van de nieuw te plaatsen brug verbinding naar de overkant van het Tolhuiskanaal. De starterswonigen worden ontsloten door leefgalerijen die op de zon georiënteerd zijn.
Het gebouw onderscheid zich door het gebruik van hoogwaardige materialen zaals natuursteen gevelbekleding, samen met de verdiepingshoge aluminium kozijnen doet dit sociale huur complex niet onder aan de chique uitstraling van de omringende dure koop woningen.
De zuidwestelijke gevel van het blok komt op drie meter afstand van de andere bebouwing te staan. Deze blinde zijgevel is voorzien van een wandreliëf , dit kunstwerk ‘Bruisende steeg’ is ontworpen door beeldend kunstenaar Rem Posthuma in samenwerking met sieradenontwerpster Peggy Bannenberg. Geïnspireerd op een 19e eeuws bedrijf dat hier bruiswater produceerde, zijn natuursteen bubbels en gefreesde cirkels aangebracht in een uitwaaierende vorm. Door bouwstromingen en leveranciers te koppelen is op een kosten efficiënte manier dit kunstwerk mogelijk gemaakt.
Het project is gasloos en wordt aangesloten op collectieve grondwarmte en WKO systeem. De woningverwarming gebeurd door middel van vloerverwarming die ook zorgt voor comfort koeling van de woningen in de zomerperiode. De puien zijn voorzien van drievoudig isolerende beglazing om de energiebehoefte te verkleinen. Op het dak wordt energie opgewekt door middel van zonnepanelen. De daken zijn voorzien van mossedum voor een vertraagde afvoer van hemelwater.
woningbouw, 2017-2022
grootte: 3.000m2 BVO, 46 woningen, sociale huur
plaats: Amsterdam Noord, Kop Grasweg
opdrachtgever: Woningbouwcorporatie De Alliantie
beeldend kunstenaar: Rem Posthuma i.s.m. sieradenontwerpster Peggy Bannenberg
fotografie: Juri Hiensch, Joost Keet

























