Kavel 9, herenhuis van Tijenbuurt, Getijenveld
GetijenVeld is een stedelijk vernieuwingsplan in de Van Tijenbuurt in het stadseel Nieuw-West in Amsterdam [Amsterdam Geuzenveld-Slotermeer]. Aan de Troelstralaan komen 9 geschakelde vrije kavels, waarvan kavel 9 de hoekkavel is, gelegen aan de zijde van de nieuw gebouwde woontoren. De stedenbouwkundige richtlijnen dienden als duidelijke richtlijnen wat betreft de gebouw contouren.
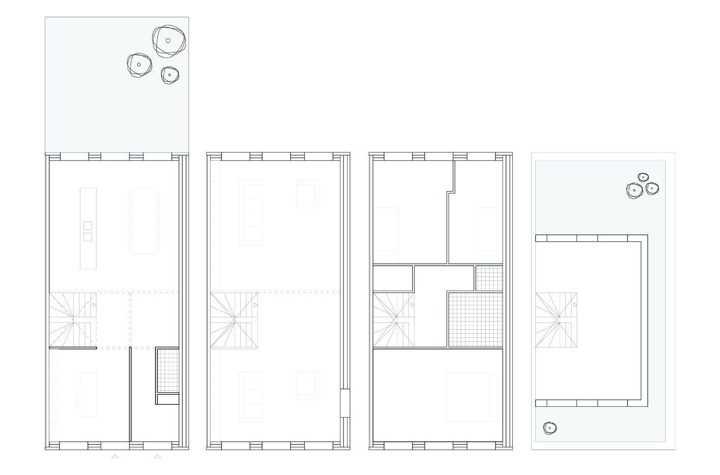
De insteek is een herenhuis te maken van 3 verdiepingen. De indeling van de woning en de extra hoge begane grond verdieping maakt het gebruik van deze woning als woon-werk woning goed mogelijk.
De achterkant van het huis grenst met de achtertuin aan een gemeenschappelijke achtertuin.
woningbouw, 2012
grootte: 174m2 + 28m2 bvo. dakopbouw optioneel
plaats: Amsterdam West
opdrachtgever: Delta Forte – FarWest
aannemer: van Wijnen
Troelstralaan









