BLOCK126I_ ZEEBURGEREILAND AMSTERDAM
Complex 89 dwellings with parking garage
The Steiger Island is “the incubator” of IJburg: within IJburg the island offers space for various experimental forms of housing such as floating housing, collective initiatives and individual commissioning.
The Noordbuurt is compact and is protected from wind and waves behind a high dike. The housing density (approximately 65 dwellings per hectare) and the fairly isolated location give the neighbourhood a strong collective identity, just as the former Zuiderzee towns had.
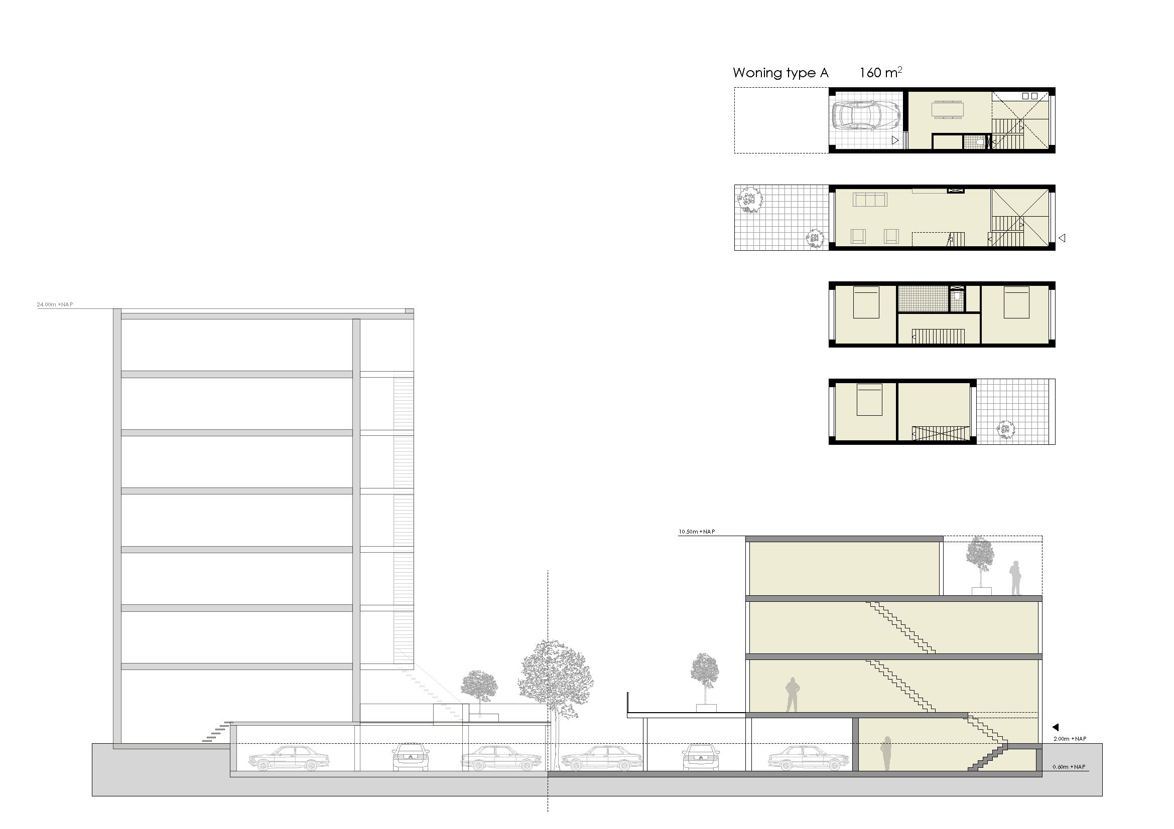
Block 126i is the last block in a series of 2- to 3-storey building blocks with a small 7-storey ’tower’. The parcelization is based on a closed building block with dimensions of 47 x 80 meters. The construction of block 126i fits in with the urban quality of the rest of the Noordbuurt.
Transition public-private
The plan has a clear transition between public and private areas. All blocks have fronts on the street side, sometimes sides, and entrances. Garden walls follow the building line and form the boundary to the public areas.
The buildings located on the north and east edge are accessed by a public road that cuts through the block. The houses have their entrances here.
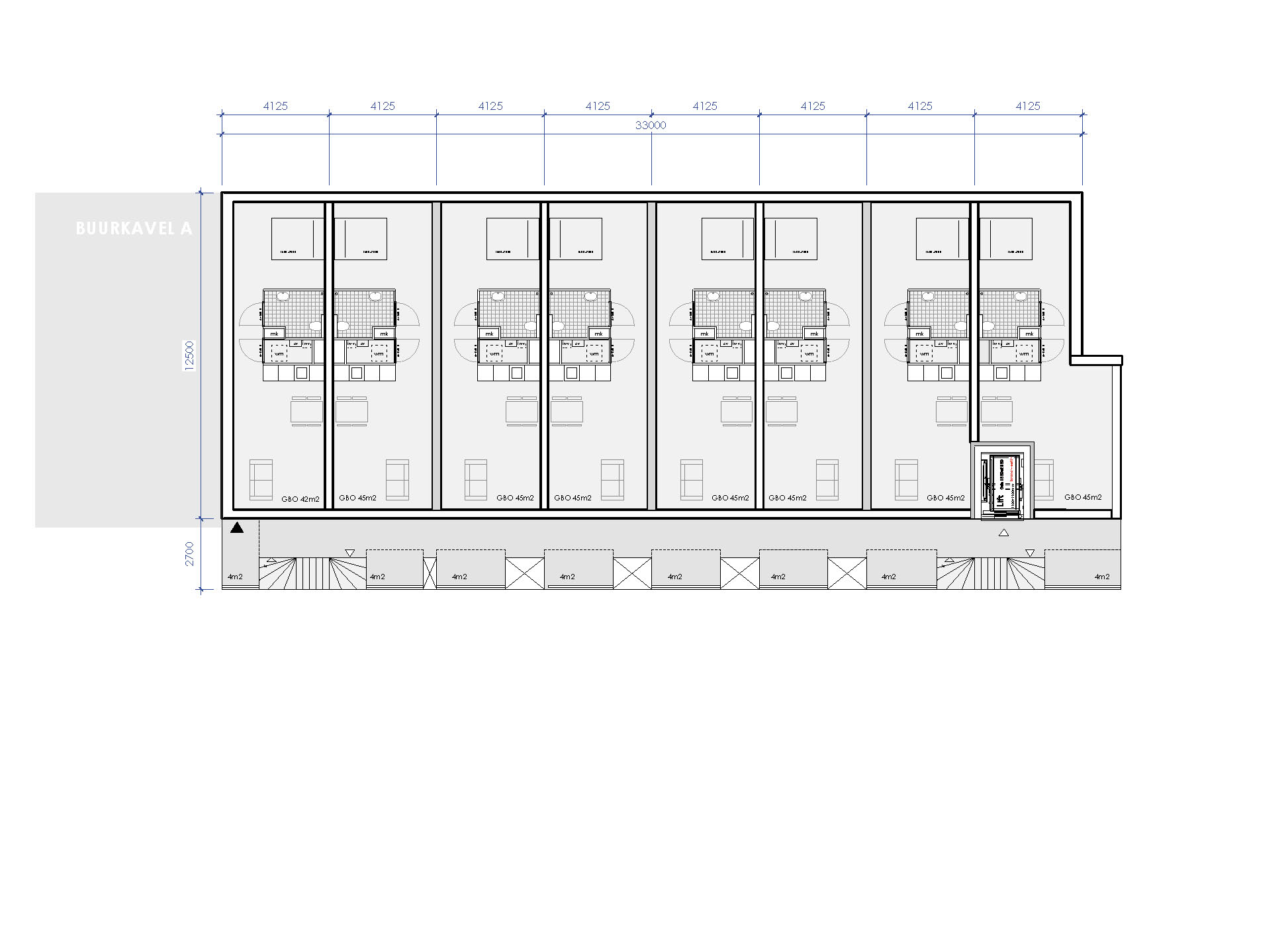
The proposal for the block is for an open building block with a residential tower with a short gallery entrance on top of a semi-underground parking garage. The roof of the parking garage serves as a communal garden deck for the residents. On the ground floor, compact maisonette apartments are situated around a shared raised deck garden.
Client: VORM Ontwikkeling Rotterdam
Housing: 47 rental studios, 8 dike houses, 17 ground floor maisonettes, 17 apartments
program: parking garage, bicycle storage
location: Hooivletstraat, Steigereiland IJburg Amsterdam
size: 8.700m2 GFA
Phase: sketch design 02-2018















